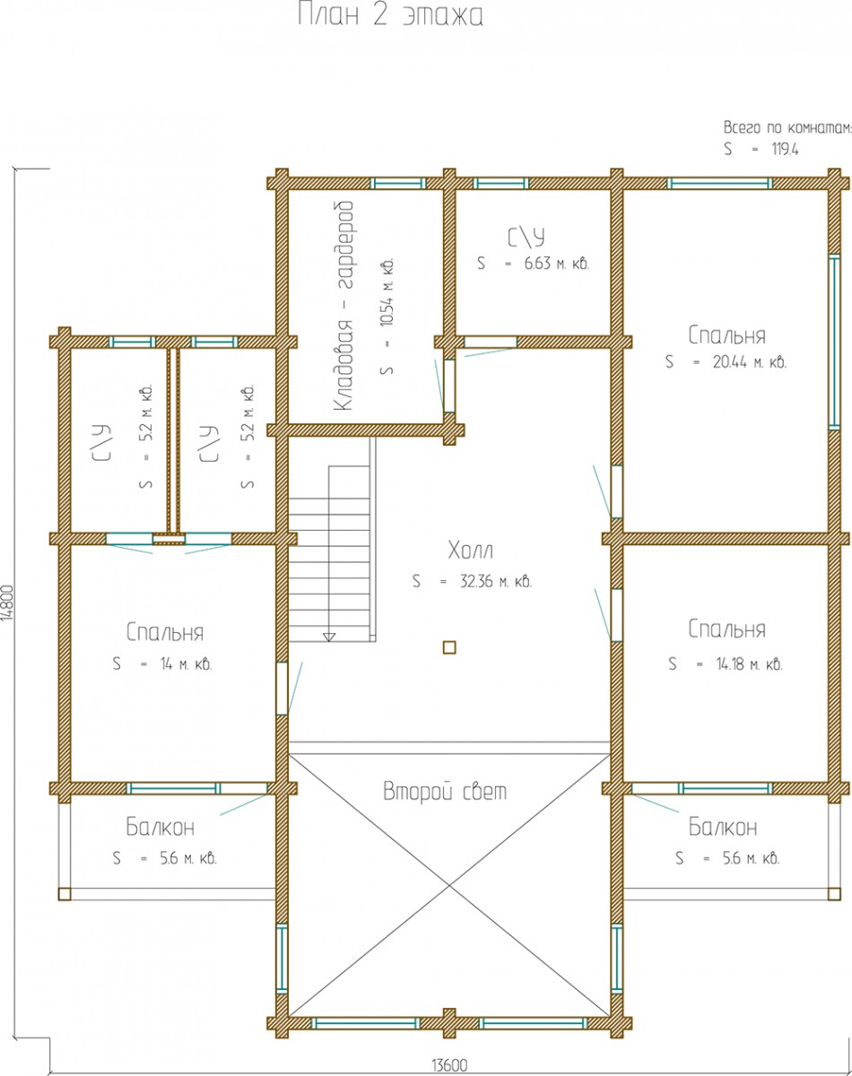
Проект "Серебряный ручей"

Площадь: 267.7 м2